estudio
Richiger
richigermelian@gmail.com
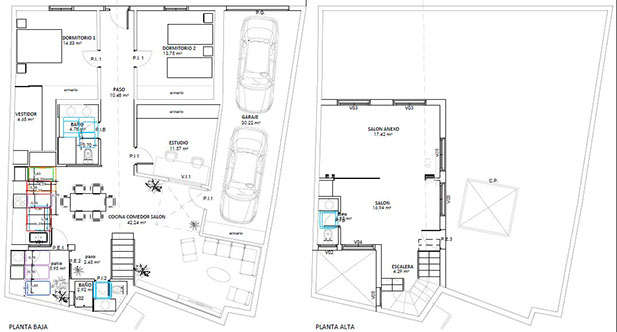
Reforma y ampliación viv. unifamiliar en Agüimes Casco - Las Palmas.
<
>
Síguenos en Facebook
arquitectura_me
© 2019 por estudio Richiger - arquitecta. Todos los derechos reservados.